匠心 服務 創(chuàng)新 品質

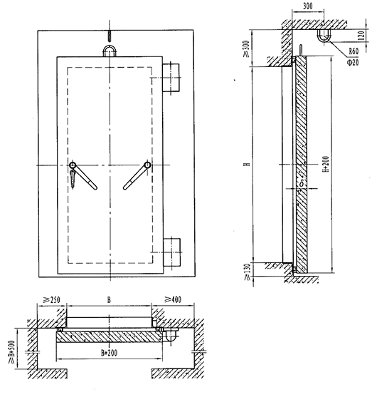
此類門的特點是門扇為鋼筋混凝土結構,具有固定門檻,密閉措施采用嵌壓梯形海綿膠條密封型式,密閉性能可靠,使用、維護方便,但門扇質量較重。

產品結構圖
| 型號 | 門孔寬B | 門孔高H | 門扇厚δ |
|---|---|---|---|
| HFM0716(5) | 700 | 1600 | 100 |
| HFM0820(5) | 800 | 2000 | 100 |
| HFM0916(5) | 900 | 1600 | 100 |
| HFM0918(5) | 900 | 1800 | 100 |
| HFM0920(5) | 900 | 2000 | 126 |
| HFM1020(5) | 1000 | 2000 | 126 |
| HFM1118(5) | 1100 | 1800 | 126 |
| HFM1220(5) | 1200 | 2000 | 140 |
| HFM1320(5) | 1300 | 2000 | 140 |
| HFM1520(5) | 1500 | 2000 | 160 |
| HFM2020(5) | 2000 | 2000 | 180 |
| HFM0820(6) | 800 | 2000 | 100 |
| HFM0920(6) | 900 | 2000 | 100 |
| HFM1020(6) | 1000 | 2000 | 100 |
| HFM1220(6) | 1200 | 2000 | 126 |
| HFM1320(6) | 1300 | 2000 | 126 |
| HFM1520(6) | 1500 | 2000 | 126 |
| HFM1820(6) | 1800 | 2000 | 140 |
| HFM2020(6) | 2000 | 2000 | 140 |